Stereo Rent ofrece un sistema audiovisual móvil con su camión-pantalla LED desplegable
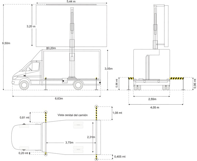
Equipado con módulos LED del fabricante Ledman de 10 mm de resolución, el camión-pantalla de Stereo Rent ofrece una opción móvil y de alta calidad visual para eventos, publicidad digital, giras promocionales,… con una pantalla desplegable de 5,44×3,20 metros.
El especialista en servicios integrales de comunicación audiovisual Stereo Rent, con sede en Barcelona, ofrece al mercado su nuevo camión-pantalla para cubrir todo tipo de eventos, acciones efímeras, giras promocionales y comerciales, que al desplegarse se convierte en un gran panel LED de 5,44×3,20 metros, con 10 mm pixel pitch SMD tres en uno, para ofrecer una resolución de 10.000 píxeles por metro cuadrado.
Este camión, un modelo Mercedes Benz – Sprinter 6, integra y despliega esta pantalla formada por paneles LED del fabricante Ledman, que ofrece una luminosidad de 6.000 nits incluso en condiciones de mucha luz exterior, con aspecto 16:9 y procesamiento digital de 16 bits.
La pantalla, con índice de protección IP67 frontal y trasero, se despliega desde el interior del camión mediante sistemas hidráulicos hasta una altura de 6,50 metros y está operativa en solo 45 minutos. Dispone de un grupo electrógeno autónomo, cuyo consumo se sitúa en 10 KW.
Stereo Rent ha utilizado este camión-pantalla durante la campaña ‘Catalans want to vote. Human towers for democracy’, que tuvo lugar en la plaza situada delante de la Sagrada Familia de Barcelona, para que las personas que allí se concentraban pudieran seguir este acto.
¿Te gustó este artículo?
Suscríbete a nuestro NEWSLETTER y no te perderás nada.
